温尼伯站

 找回密码
 注册用户
搜索
热搜: 接送 租房
查看: 1300|回复: 11
上一主题 下一主题

南区Brio Townhouse转lease

[复制链接]

8

主题

95

帖子

103

积分

温村达人

Rank: 6Rank: 6

积分
103
跳转到指定楼层
楼主
发表于 2019-7-20 23:27:42 | 只看该作者 |只看大图 回帖奖励 |倒序浏览 |阅读模式
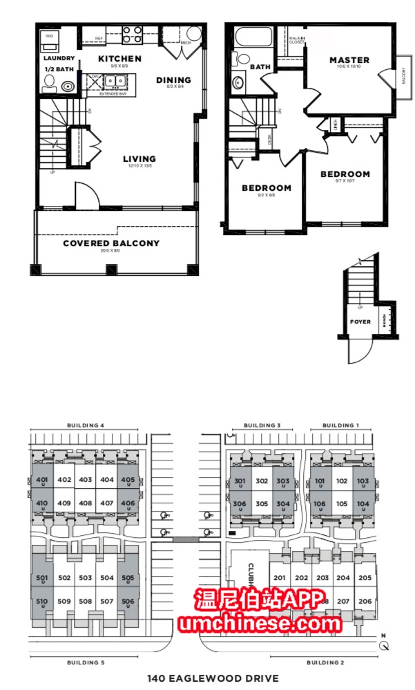
到明年二月份 八月底九月初可以入住 3室 1.5卫 没有室内停车位 可以养宠物 新房 户型图如下 一楼入户楼梯 二楼客厅餐厅半卫 三楼全卫三个卧室 最靠边的一户 所以有一侧没有邻居



回复

使用道具 举报

8

主题

95

帖子

103

积分

温村达人

Rank: 6Rank: 6

积分
103
沙发
 楼主| 发表于 2019-7-20 23:28:25 | 只看该作者
有兴趣加微信 wst-wst


回复 支持 反对

使用道具 举报

8

主题

95

帖子

103

积分

温村达人

Rank: 6Rank: 6

积分
103
板凳
 楼主| 发表于 2019-7-20 23:30:30 | 只看该作者
地址140 Eaglewood Drive
回复 支持 反对

使用道具 举报

8

主题

95

帖子

103

积分

温村达人

Rank: 6Rank: 6

积分
103
地板
 楼主| 发表于 2019-7-21 01:15:31 | 只看该作者

回复 支持 反对

使用道具 举报

8

主题

95

帖子

103

积分

温村达人

Rank: 6Rank: 6

积分
103
5#
 楼主| 发表于 2019-7-21 06:00:30 | 只看该作者

回复 支持 反对

使用道具 举报

8

主题

95

帖子

103

积分

温村达人

Rank: 6Rank: 6

积分
103
6#
 楼主| 发表于 2019-7-21 14:04:23 | 只看该作者

回复 支持 反对

使用道具 举报

8

主题

95

帖子

103

积分

温村达人

Rank: 6Rank: 6

积分
103
7#
 楼主| 发表于 2019-7-21 20:29:56 | 只看该作者

回复 支持 反对

使用道具 举报

8

主题

95

帖子

103

积分

温村达人

Rank: 6Rank: 6

积分
103
8#
 楼主| 发表于 2019-7-21 22:02:20 | 只看该作者

回复 支持 反对

使用道具 举报

8

主题

95

帖子

103

积分

温村达人

Rank: 6Rank: 6

积分
103
9#
 楼主| 发表于 2019-7-22 00:43:32 | 只看该作者

回复 支持 反对

使用道具 举报

8

主题

95

帖子

103

积分

温村达人

Rank: 6Rank: 6

积分
103
10#
 楼主| 发表于 2019-7-22 15:50:33 | 只看该作者

回复 支持 反对

使用道具 举报

您需要登录后才可以回帖 登录 | 注册用户

本版积分规则



手机版|温尼伯站

JS of wanmeiff.com and vcpic.com Please keep this copyright information, respect of, thank you!JS of wanmeiff.com and vcpic.com Please keep this copyright information, respect of, thank you!

GMT-5, 2026-4-17 10:32 , Processed in 0.102305 second(s), 49 queries , Gzip On.

温尼伯站版权所有

All right reserved by Winnipeg Chinese Media.

快速回复 返回顶部 返回列表